Váš nový domov v Praze
Prodej poslední bytové jednotky v rodinném domě
157 m², Praha - Újezd u Průhonic
Váš nový domov v Praze - novostavba RD (MČ Újezd u Průhonic)
Hledáte ideální kombinaci klidného i aktivního života zároveň? Možnost blízkého sportovního vyžití a obklopeni přírodou? Výbornou dopravní dostupností do centra velkoměsta s napojením na D1? Máme pro vás řešení. V jiho-východní okrajové části Prahy, v lukrativní lokalitě Újezd u Průhonic, vyrostla novostavba dvougeneračního rodinného domu, která nabízí dvě identické, plně autonomní bytové jednotky. Nyní máte jedinečnou příležitost koupit si jednu z nich, nebo s rodinou a blízkými třeba hned obě!
____________________________________________________________________________________________
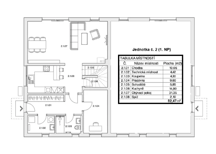
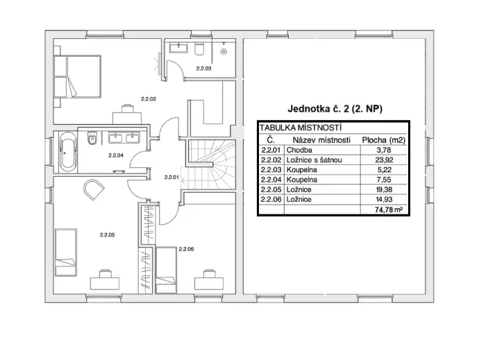
Váš budoucí domov je navržen tak, aby splňoval požadavky na moderní a komfortní bydlení. Každá bytová jednotka má prostornou dispozici 5+KK o celkové podlahové ploše 157 m² a rozkládá se ve dvou nadzemních podlažích s podkrovím pro uložení sezónních věcí. Součástí jednotky je vlastní zahrada a parkovací stání. Dům je napojen na inženýrské sítě: elektřiny, vody a kanalizace. Každá jednotka má vlastní měřidla pro plnou nezávislost. Nyní je stavba ve fázi 'whitebox', tedy máte možnost vlastní volby účelu místností, zejména pokud jde o šatny, pracovny nebo koupelny - konfigurace těchto prvků je nyní na vás. Více informací vám poskytne makléř.
____________________________________________________________________________________________
Nadstandard a úspora energií
Kromě promyšlené dispozice se můžete těšit na celou řadu moderních prvků. Vytápění a ohřev vody zajišťuje tepelné čerpadlo v kombinaci s teplovodním podlahovým topením, což spolu s rekuperací tepla zaručuje nízké provozní náklady. Dům spadá do energetické třídy B, tedy do kategorie velmi úsporných budov, dalšímu upgradu napomáhá i příprava na fotovoltaiku. Projekt počítá s nadstandardním vybavením, jako jsou velkoformátové obklady, značkové sanitární předměty, elektrické žaluzie, zabezpečovací systémy a příprava pro systém smart-home.
____________________________________________________________________________________________
Lokalita, co vám vezme dech
Dům se nachází v klidné rezidenční čtvrti s dostatkem zeleně a širokou občanskou vybaveností v docházkové vzdálenosti (sportoviště na fotbal a tenis, škola, školka, restaurace, kavárna a obchody). Další rozšířená vybavenost, včetně nákupních center, je dostupná v sousedních Čestlicích, Průhonicích a Chodově, kam se autem dostanete za pouhých 10 minut. Pro milovníky přírody, sportu (např. běhu nebo jogingu a cyklistiky) je okolí doslova rájem (Milíčovský les, Průhonický park a dendrologická zahrada). Kromě zeleně v zahradách a parcích se v blízkosti nachází 3 rybníky a navazující plochy polí, luk a lesů. Dopravní dostupnost do centra je vynikající, zastávka MHD je pouhých 170 metrů od domu a rychlé napojení na dálnici D1 je ve dvou variantách nájezdů.
____________________________________________________________________________________________
Jak si svůj sen splnit?
V současné fázi výstavby, s 90% dokončeností, vám nabízíme dvě možnosti, jak se stát majitelem této unikátní nemovitosti:
Dokončení svépomocí (whitebox): Dokončete si interiér dle svých snů a získejte jednotku za nejnižší cenu 20 990 000 Kč vč. DPH.
Dokončení na klíč: Nechte developerovi dokončit dům do standardů developera a bydlete bez starostí za cenu 21 990 000 Kč vč. DPH.
Nenechte si ujít tuto výjimečnou příležitost a kontaktujte nás pro více informací.
____________________________________________________________________________________________
Zaujala vás tato nabídka? Rádi vám poskytneme další informace a domluvíme si prohlídku!
Potřebujete více informací nebo rovnou si sjednat prohlídku?
Neváhejte kontaktovat naše makléře.
od 18 500 000 Kč
včetně provize a DPH

Potřebujete více informací nebo rovnou si sjednat prohlídku?
Neváhejte kontaktovat naše makléře.











